Общие сведения
Материал: Дома из CLT панели
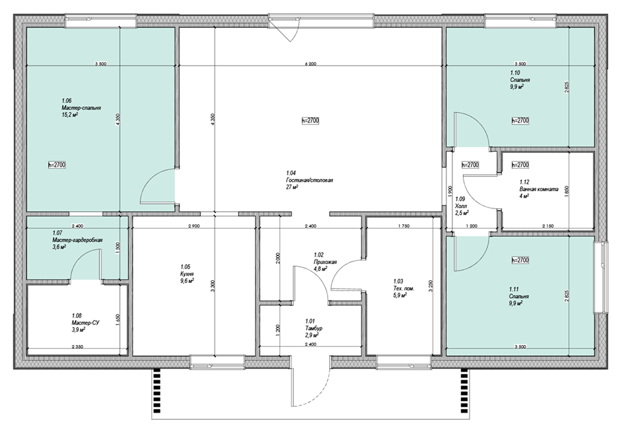
Детали проекта
Полноценный дом для постоянного проживания из CLT-панелей
Префаб-дом — это дом, изготовленный на заводе с высокой точностью и контролем качества. В основе наших решений — дома из CLT-панелей толщиной 250 мм, которые обеспечивают прочность, энергоэффективность и идеальную геометрию без усадки. Это технология, которая позволяет построить современный загородный дом под ключ быстрее и надежнее, чем при классическом строительстве
Комплектация
Каждый дом проектируется с учетом реальных климатических нагрузок:
— CLT-панели 250 мм. Это обеспечивает высокую теплоизоляцию и стабильность конструкции;
— Стропильная система 45×195 мм. Означает надежность кровли и долговечность;
— Возможность реализации любого типа фундамента.
Что входит в стоимость: теплый контур дома, домокомплект из CLT-панелей, входная дверь, оконные конструкции, кровля, водосточная система.
